462 Co Rd 763 B, Devine, TX 78016
Property Photos
Would you like to sell your home before you purchase this one?
Priced at Only: $560,000
For more Information Call:
Address: 462 Co Rd 763 B, Devine, TX 78016
Property Location and Similar Properties
- MLS#: 1924397 ( Farm Ranch )
- Street Address: 462 Co Rd 763 B
- Viewed: 5
- Price: $560,000
- Price sqft: $280
- Waterfront: No
- Year Built: 2011
- Bldg sqft: 2000
- Bedrooms: 2
- Total Baths: 2
- Full Baths: 2
- Days On Market: 24
- Additional Information
- County: MEDINA
- City: Devine
- Zipcode: 78016
- District: Devine
- Elementary School: Devine
- Middle School: Devine
- High School: Devine
- Provided by: Watters International Realty
- Contact: Christopher Watters
- (512) 646-0038

- DMCA Notice
-
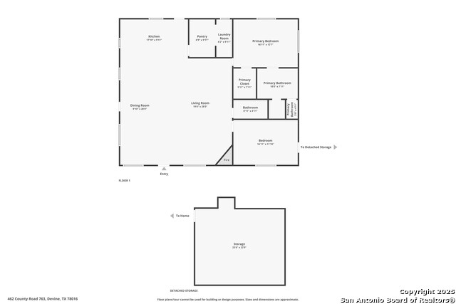
DescriptionA hunter's delight! Come discover this one of a kind "Barndomium" retreat on a sprawling 18.725 acres (3 parcels combined). This unique property includes a large covered bar b que area, fully equipped meat processing building and lots of parking for autos and RVs. Enjoy both the residential comfort and versatile functionality of this 2 bed / 2 bath home featuring 10 foot vaulted ceilings with cedar planks that add rustic appeal, stained concrete floors, lot of windows and impressive craftsmanship throughout. Cozy up to the corner floor to ceiling rock fireplace over the upcoming cooler months. Talk about a chef's delight! The kitchen opens to the dining and living spaces,and features solid wood cabinetry, granite looking Corian countertops, L shaped breakfast bar, large center island with an electric cooktop and steamer drawer, stainless steel appliances, and abundant cabinet storage. The dining area is surrounded by windows for plenty of natural light, complemented by sliding barn doors and recessed lighting for added charm. The primary master bath offers a spacious retreat with walk in closet, double vanity, corner jetted tub, and a large walk in shower with a built in seat. The secondary bath features a soaking tub with a tile surround and a single vanity. Covered porches extend the full length of the home, front and back, providing shaded areas for outdoor comfort and relaxation. In addition to the main home, the property includes multiple outbuildings for a wide range of uses. There's a detached RV and tractor carport, an attached (to meat processing building) 3 4 car covered carport, and a secondary steel and limerock structure currently used as a meat processing facility. This building includes an air conditioned 1,500+ sq. ft. indoor workspace with built in shelving, a tri sink, and a large walk in deep freezer. It also features a covered outdoor kitchen with a sink and counter space, perfect for hosting gatherings. The land itself is beautifully varied, featuring a tank (pond), a creek, and mature trees, offering both scenic beauty and agricultural potential. Two Conex boxes on the property provide additional storage or potential conversion space. With three separate surveys and tax records, the acreage is zoned agricultural and equipped with multiple septic systems, individual water and electric connections, and air conditioning throughout the structures. Whether used as a full time residence, second home, hunting retreat, or multi use business property, this versatile acreage delivers an unmatched combination of rural charm, modern functionality, and space to live, work, and enjoy the outdoors.
Payment Calculator
- Principal & Interest -
- Property Tax $
- Home Insurance $
- HOA Fees $
- Monthly -
Features
Building and Construction
- Apprx Age: 14
- Exterior Features: Rock/Stone Veneer, Steel Frame
- Kitchen Length: 17
- Other Structures: Outbuilding
- Source Sqft: Bldr Plans
Land Information
- Total Acres: 18.725
School Information
- Elementary School: Devine
- High School: Devine
- Middle School: Devine
- School District: Devine
- School Tax: 292.78
Eco-Communities
- Irrigation Wells: None
- Mineral Rights: None
- Shallow Water: No Wells
- Water: Other
- Water/Sewer: Septic
Utilities
- Sewer: Septic
- Utilities Available: Electricity, Water
- Utilities On Site: Electricity, Water
Finance and Tax Information
- Available W Lease: No
- Days On Market: 12
- Homestead: No
- Other Tax: 95.09
- Other: No
- Total Tax: 501.81
Other Features
- Agricultural: Yes
- Contract: Exclusive Right To Sell
- Disabled: No
- Distance Frm S A: 25-50 MI from Downtown
- Instdir: From W Hondo Ave, turn left onto FM 2200 W/Jay Dr, continue to follow FM 2200 W, turn right onto Co Rd 763, turn right on property
- Legal Description: 18.725 acres: Sur. 477, J.L. Mann Abst. 676 and Sur.123, C.
- Ph To Show: 210-222-2227
- Zoned: Residential
- Restrictions: None
- Style: One Story
Owner Information
- Owner Lrealreb: No
Similar Properties
- Fred Santangelo
- Premier Realty Group
- Mobile: 210.710.1177
- Mobile: 210.710.1177
- Mobile: 210.710.1177
- fredsantangelo@gmail.com














































